Будинки в Вінниці
Будинок із земельною ділянкою для проживання або зеленого туризму в Вінниці
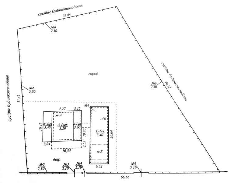
с. Крутогорб, Гайсинський р-н, Вінницька обл.
Від власника, без посередників. Великий, просторий будинок (загальною площею 517, 5 м.кв.) із земельною ділянкою 25 соток (0, 25 га) для постійного проживання, відпочинку, зеленого туризму в стані будівництва. Тихе, спокійне місце із чудовим краєвидом в 3-х кілометрах від траси. Через дорогу сосновий ліс із чистим повітрям, до річки Соб 500 метрів. Дві двоповерхових цегляних будівлі з переходом між ними на рівні другого поверху з великими терасами із видом на сосновий ліс. Дах із металопрофілю. Погріб (33 м.кв.) під господарською будівлею. Артезіанська свердловина 70 м. 3-х фазне електропостачання. На ділянку заведений газ. Є грубка. Територія огороджена парканом із металопрофілю висотою 2, 5 м. Зі сторони дороги паркан із цегли. Двоє воріт.
Є всі необхідні документи на будинок та ділянку. Можливий торг для реальних покупців. До ріелтерів прохання – не турбувати.
Більш детальна інформація за телефоном: + 38 093 063 38 05, Надія.
Общая площадь 517, 5
Жилая площадь 287
Площадь кухни 11, 8
Количество комнат 12
Этажность дома 2
Площадь зем.участка 25 соток
Дії з оголошенням #1656821
Поділіться з друзями і знайомими
Поділіться оголошенням Будинок із земельною ділянкою для проживання або зеленого туризму з друзями, знайомими, потенційними клієнтами, використовуйте для цього соціальні мережі, месенджери. Це додасть оголошенню популярності і ефект багаторазово підвищиться.
Збережіть або повідомте про порушення
---- Надежда
- На сайті з: 30.05.2019
- Активність: 30.05.2019
Поради з безпеки
- Познайомтеся з продавцем в публічному місці
- Перевірте товар перед покупкою
- Сплачуйте лише після того як переконаєтеся, що товар відповідає опису і вашим вимогам
- Бажано провести операцію при свідках
QR-код сторінки
Поділіться QR-кодом в соціальних мережах, чатах, месенджерах щоб ваші знайомі, потенційні клієнти відкрили ваше оголошення на своїх смартфонах.
Казахстан
Україна
Узбекистан
Молдова